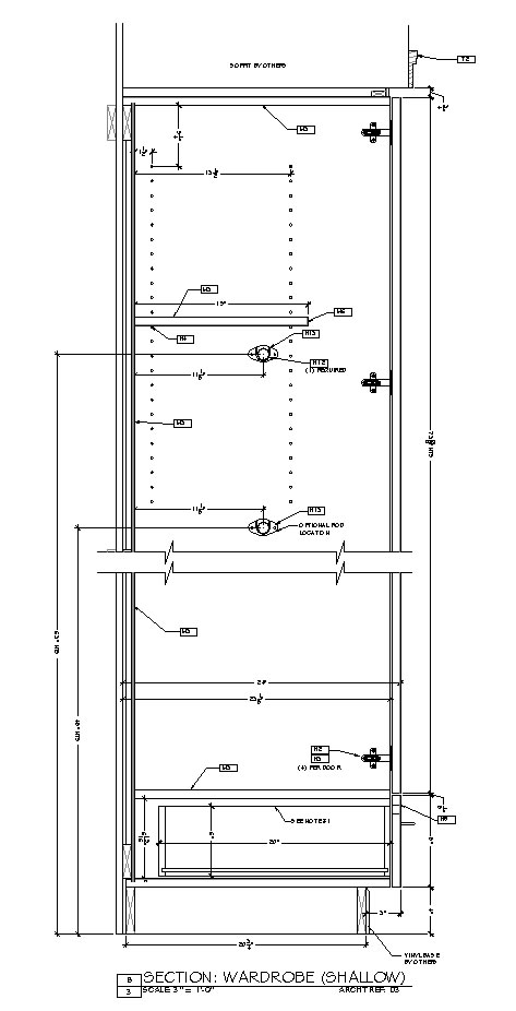
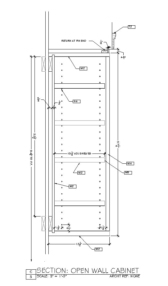
Scroll down to view Drawing 3 examples close up.
 
 
Back
 

 

 
 
 
 
View Drawing 3 in Adobe PDF Format
Back

 

PO BOX 37 Tarboro, NC 27886Phone: 252-823-6866 Fax: 252-823-5707